當進入裝修的領域時,可能被眾多選擇所迷惑,無論是挑選設計師、統包還是師傅,或是面臨裝潢中的一些困擾,這都是相當正常的。作為一個設計公司,我們深知這些疑慮,因此想分享一些建議,希望能夠幫助你更順利地進行裝修。

一.初步洽談與諮詢:
雖然有許多線上會議工具,但我們認為面對面的交談效果更好。透過面對面的交流,雙方可以更快速地了解對方,建立起更加良好的溝通基礎。
1.建議面對面交談,這有助於快速有效地了解彼此。
在洽談前,可以先做些功課,測試設計師的解決問題能力及是否能夠適時解釋無法實現的原因。了解設計流程、服務內容、收費標準及付款方式。
2.在洽談之前,你可以事先做一些功課,考察一下設計師的能力以及公司的服務內容和收費標準。這有助於你更有針對性地提出問題,同時也能夠更快地確定是否與設計師的理念相符。畢竟,理念不同可能會導致後續的溝通不順,進而影響整個裝修過程。

二.客變/設計 簽約:
對於預售屋,洽談後可討論初步客變方案。
確認設計師是否能夠親自陪同至現場,因為這有助於即時調整特殊狀況。
接下來,一旦確定了設計師,就進入了客變和設計簽約階段。對於預售屋,你可以和設計師討論一些初步的客變方案,這樣有助於確保後續施工的順利進行。此外,我們建議在設計階段,你可以要求設計公司提供過去案例的圖說和模型,這樣可以更清楚地了解他們的服務內容。

三.設計溝通與製圖階段:
- 提供現況配置、設計平面、隔間地坪、水電配置、照明迴路及消防圖面等,並與建商進行充分討論。
- 制定平面系列,包括各項細節,並進行選材選色,同步更新至模型,提供模型或渲染圖。
- 圖說的完整性有助於精準的工程估價單,而有經驗的公司在設計階段會控制預算。

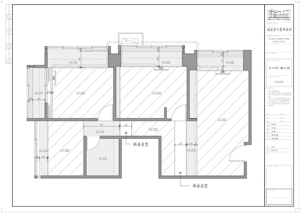
平面配置圖(了解各式動線尺寸、家具尺寸及擺放可能性,是施工的一切基礎)

天花板配置圖(設計師依照原始天花板狀況及梁柱情形及消防管線的條件進行天花板的設計規劃)

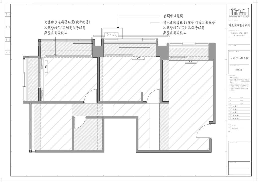
空調規劃配置圖(冷媒管的走向及空調排水管配置,機器擺放的位置,影響著整個空間的冷房效果及舒適度)

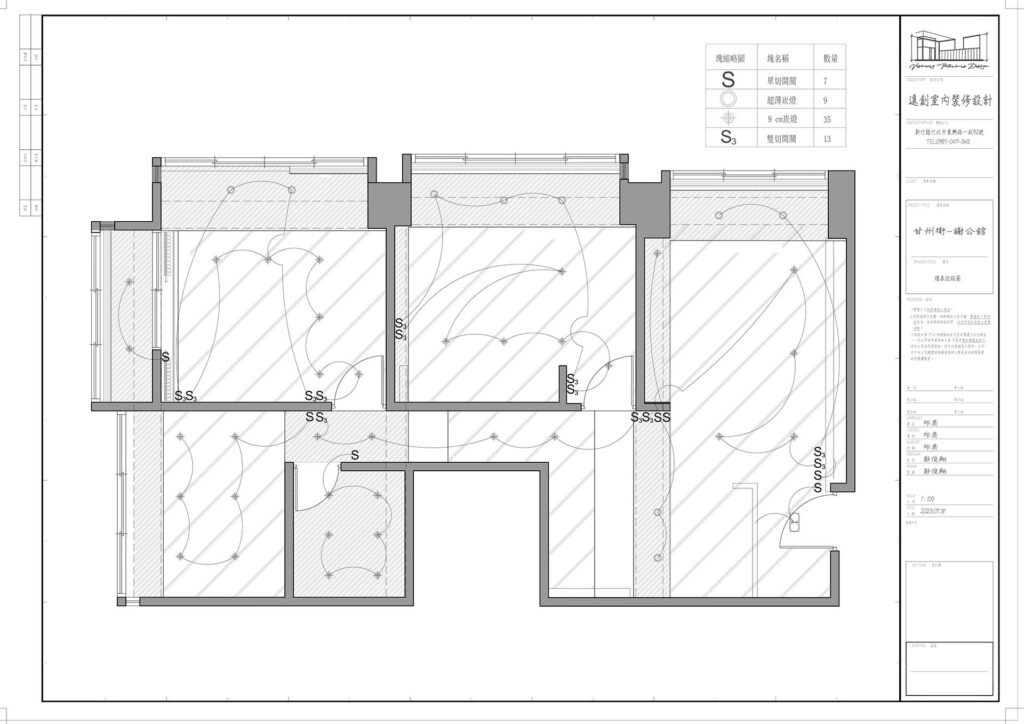
燈具迴路配置圖(開關的設計方式配置及燈飾的詳細規格及數量)

插座弱電配置圖(每個電視線、網路線、電話線及插座位置的詳細高度及位置)

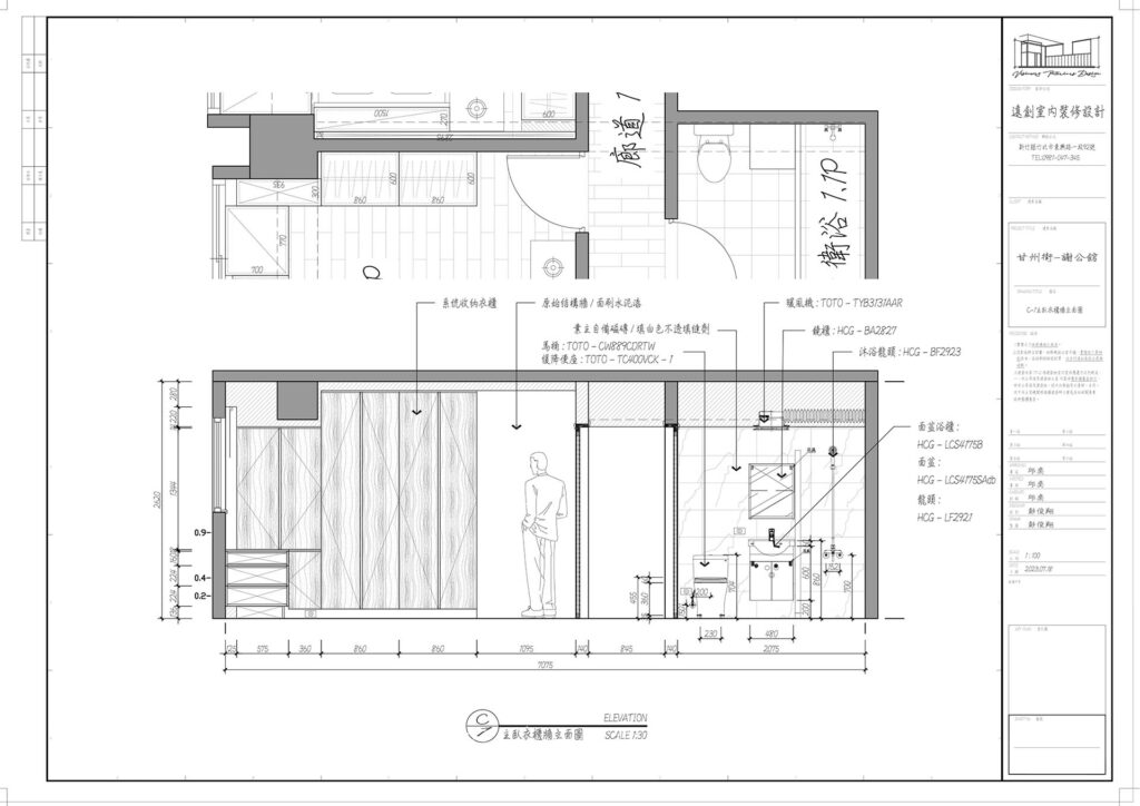
立面索引圖(設計師會規畫出每一面牆體的詳細設計材料及施工方式,並給予圖面編號,以便於翻閱尋找)

立面設計圖(設計師將圖面尺寸及材料標註清楚,便於施工單位、及業主方閱讀及施工)


3D渲染圖(讓業主直觀的感受實際的整體配色感受及設計方向)

施工預算書(當設計定稿時,設計師會依照詳細設計圖的內容規劃出一份施工預算書)
四.監造與施工階段:
觀察工地管理、施工品質及作品的真實樣貌,可以進一步了解公司的專業程度。
確保師傅與設計師之間有良好的合作關係,以減少施工過程中的溝通問題。
裝修的過程中,設計階段尤其重要。設計師會提供各種圖說,包括現況配置、設計平面、材料選擇等,以確保整個裝修過程的準確性和流暢性。而工程階段,你可以觀察工地管理和施工品質,同時也可以和師傅和設計師溝通,這有助於確保整個裝修過程的順利進行。


施工過程(設計師需與工班團隊有效的溝通施工方式及監督案場)


五.驗收交屋 開心入住
完成了一切項目後,將與客戶確認家庭的一切設施使用方式並將設備保固書一同交給業主,並完成最後驗收程序。
總的來說,裝修是一個相當複雜的過程,但只要你和設計團隊之間能夠建立起良好的溝通和合作關係,相信一切都會順利進行。希望我們的建議能夠幫助你找到最合適的裝修方案,打造出理想中的家居環境。

觀看我們的FB https://www.facebook.com/profile.php?id=100093842403235
觀看我們的IG https://www.instagram.com/visionarys.interiors.design/